Chiaravalle - in zona centralissima e ben servita
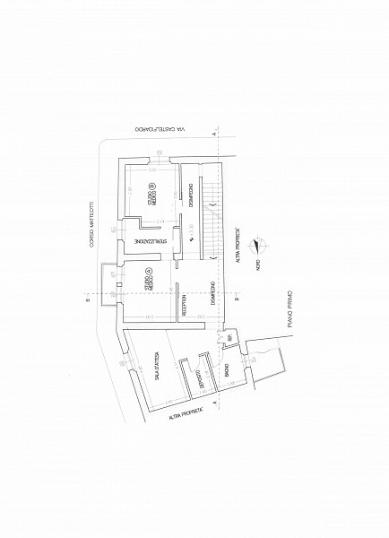
Vendesi immobile ad uso ufficio / studio dentistico di circa 80 mq oltre a soffitta, completamente ristrutturato e con ingresso indipendente.
€ 130.000,00 trattabili
Cod. 8
in vendita Chiaravalle € 130.000,00
Descrizione
- Tipologia:
- Metri quadrati: 80
- aria condizionata: Sì
- balcone: Sì
- Ingresso autonomo: Sì










